Direct reageren? Stel notificaties in!
Appartement in Zomerlindepad
4500
per maand
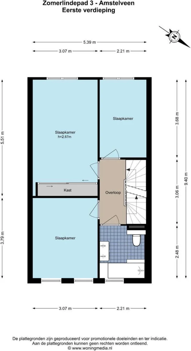
148 m²
oppervlakte
Gestoffeerd
opleverniveau
Onbeperkt
huurtermijn

























1 dag geleden
Eigen Keuken
Eigen Douche
Eigen Toilet
Eigen Woonkamer
Huisdieren Toegestaan
Slaapkamers
Beschrijving
zomerlindepad
amstelveen
stijlvolle en ruime gestoffeerde gezinswoning aan groen plantsoen met waterpartij
aan een breed en rustig plantsoen met sierwater ligt deze uitstekend onderhouden en verrassend ruime eengezinswoning van circa 148 m2 woonoppervlakte. de woning combineert een moderne afwerking met een praktische indeling, veel lichtinval en een zonnige tuin op het zuiden. met vi ...
Map should be here