Direct reageren? Stel notificaties in!
Appartement in Ferguutstraat
2600
per maand
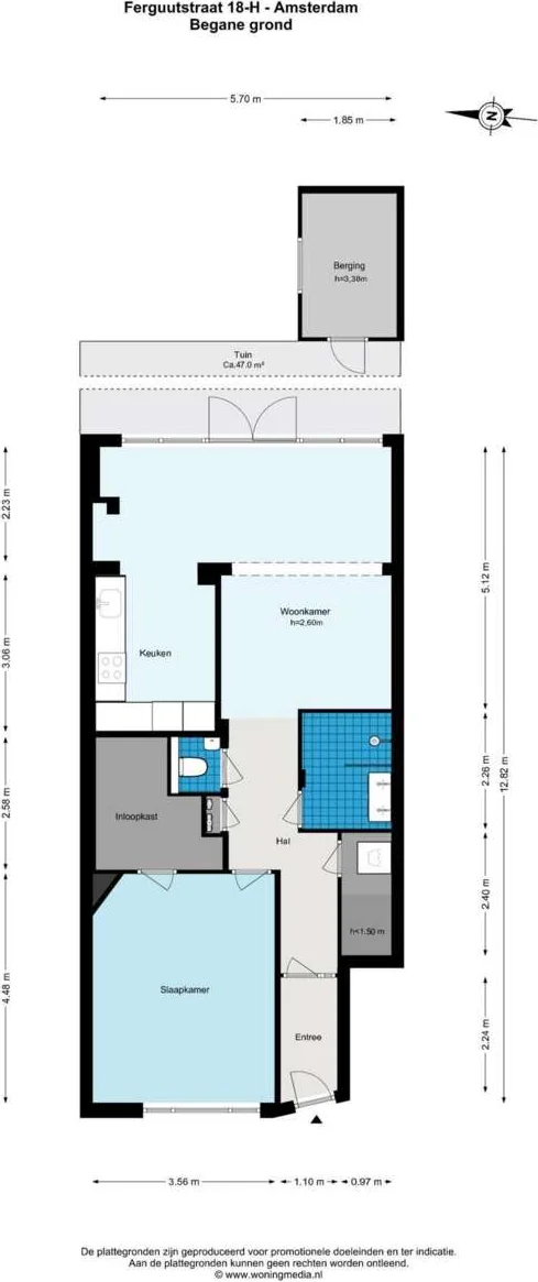
71 m²
oppervlakte
Onbekend
opleverniveau
Onbeperkt
huurtermijn































4 dagen geleden
Eigen Keuken
Eigen Douche
Eigen Toilet
Eigen Woonkamer
Huisdieren Toegestaan
Slaapkamers
Beschrijving
-- te huur --
volledig gerenoveerde beganegrond woning (ca. 70m2) met ruime tuin, zeer energiezuinig met energielabel a+++. gelegen in de opkomende wijk bos en lommer. ideaal voor iemand alleen of een stel. niet geschikt voor woningdelers!
indeling:
eigen entree op de begane grond, tochtportaal met toegang tot de hal waar vanuit toegang is tot alle vertrekken. de l-vormige woonkamer heeft op ...
Ideale huurder
Onbelangrijk
Onbelangrijk
??? - ??? jaar
Map should be here