Direct reageren? Stel notificaties in!
Appartement in Lutonhof
2375
per maand excl. g/w/l
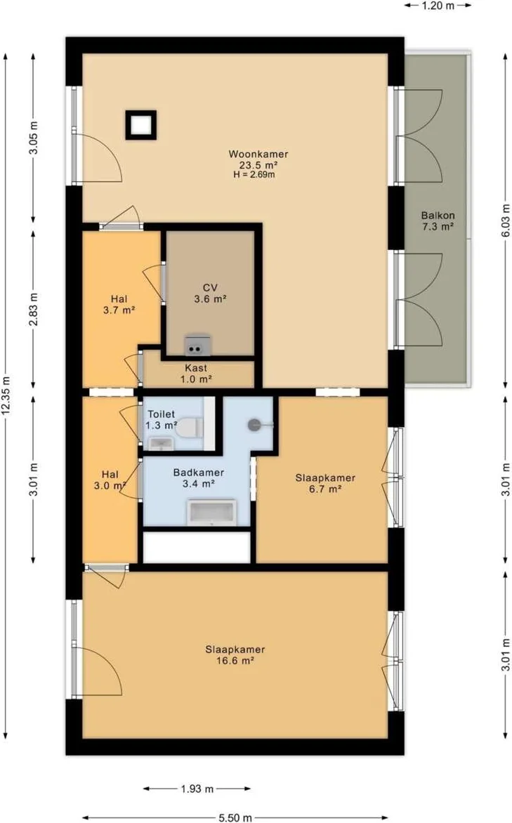
65 m²
oppervlakte
Gestoffeerd
opleverniveau
Onbeperkt
huurtermijn




































7 dagen geleden
Eigen Keuken
Eigen Douche
Eigen Toilet
Eigen Woonkamer
Huisdieren Toegestaan
Slaapkamers
Beschrijving
nieuw in de verhuur!! ben jij op zoek naar een heerlijk licht, duurzaam (energielabel a+) en goed ingedeeld gestoffeerd 3-kamer (zie plattegrond voor de afmetingen van de slaapkamers: niet geschikt voor woningdelers) nieuwbouwappartement met ruim balkon op loopafstand van station sloterdijk. zoek dan niet verder en plan snel een bezichtiging.
*reageren kan uitsluitend per email tezamen met p ...
Map should be here