Direct reageren? Stel notificaties in!
Kamer in Newtonstraat
775
per maand excl. g/w/l
16 m²
oppervlakte
Gestoffeerd
opleverniveau
Beperkt!
huurtermijn






9 dagen geleden
Eigen Keuken
Eigen Douche
Eigen Toilet
Eigen Woonkamer
Huisdieren Toegestaan
Beschrijving
Please note! Only for students currently residing outside Amsterdam (proof of registration in another municipality is required) and studying in Amsterdam (proof of program registration required)
Duration of rent: 2 years
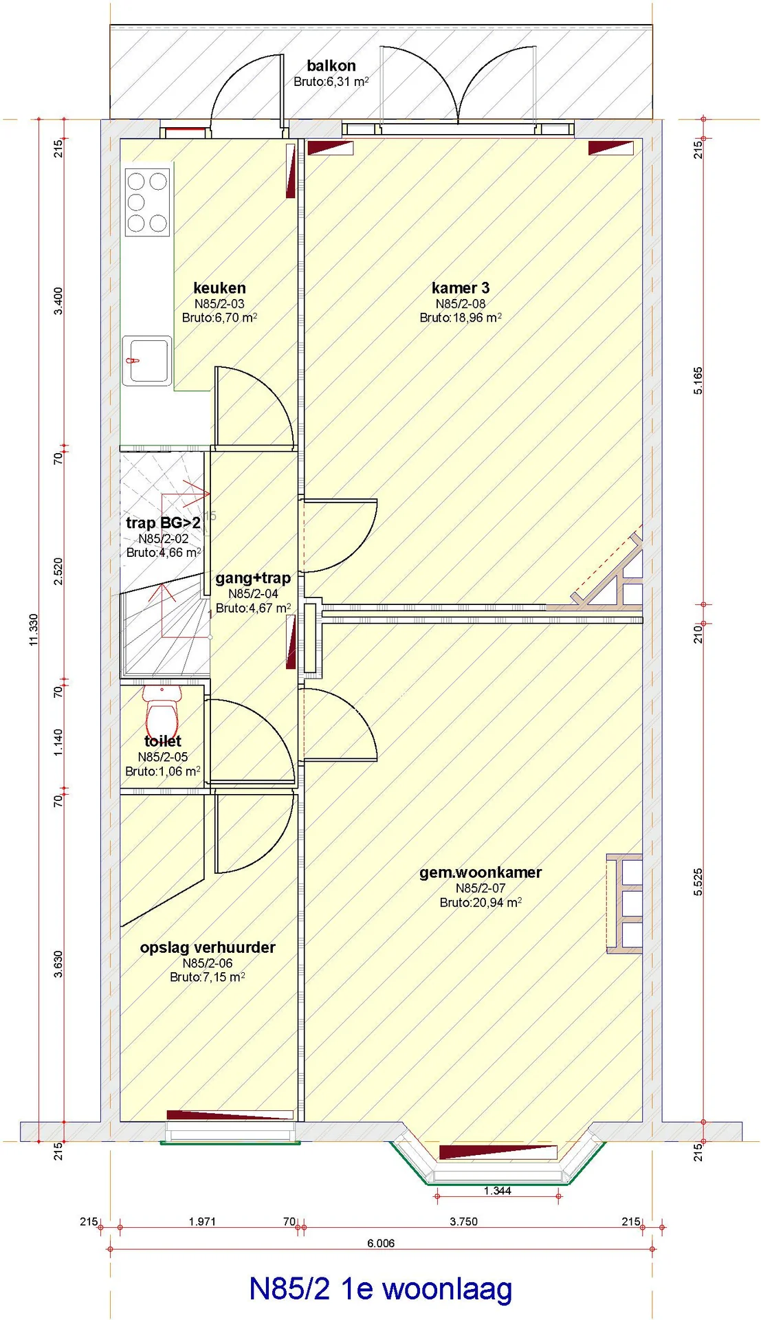
An upstairs apartment of approximately 200 m² for three residents (one room is vacant) spread over two floors.
First floor layout: kitchen, room 16 m² + balcony, room 20 m², toilet, stairs and hallway, and an additional room 7 m².
Second floor layout: bathroom, room 16 m² + balcony, room 20 m² + walk-in closet, additional room 7 m², stairs and hallway.
The additional rooms of 7 m² are used by mutual agreement.
Map should be here