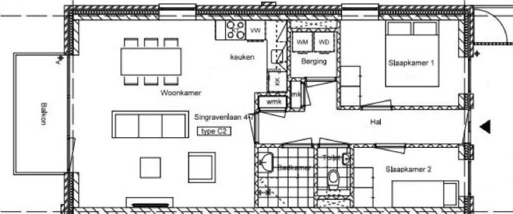
Appartement in Singravenlaan














Wonen met New Yorkse flair in hartje Arnhem (foto's ter illustratie)
Ontdek het moderne stadsleven in het gloednieuwe appartementencomplex aan de Singravenlaan een unieke plek waar stijl, comfort en duurzaamheid samenkomen.
Het complex bestaat uit drie eigentijdse gebouwen die stuk voor stuk zijn ontworpen met oog voor detail en kwaliteit.
De architectuur ademt een New Yorkse uitstraling: stoere stalen accenten, grote raampartijen en veel natuurlijk licht creëren een industriële, maar warme sfeer. Binnen geniet je van hoogwaardige afwerking, een luxe keuken met topapparatuur en een stijlvolle badkamer. Alles is ontworpen voor een zorgeloos, energiezuinig en comfortabel leven.
De ligging aan de Singravenlaan is ideaal rustig én centraal. Je bevindt je vlak bij het levendige centrum van Arnhem én Velp, met winkels, scholen, restaurants en een groot multifunctioneel park binnen handbereik. De uitstekende uitvalswegen en OV-verbindingen zorgen ervoor dat je moeiteloos reist naar Nijmegen, Apeldoorn, Zutphen, Utrecht en de rest van de regio.
Dit is wonen op zn best: modern, duurzaam en met een vleugje wereldse allure.
Laat deze kans niet aan je voorbijgaan beleef het wonen met karakter aan de Singravenlaan!
Bijzonderheden:
- Zo goed als nieuwe keukens voorzien van alle nodige apparatuur
- Twee slaapkamers
- Inclusief eigen parkeerplaats en berging
- Huisdieren niet toegestaan
- Binnen roken niet toegestaan
-
Minimaal 24 maanden
- Beschikbaar
1 februari 2026
- Inkomenseis van toepassing (3x kale huur)
Kale huur 1290,45
Servicekosten 75,-
Afschrijving 55,-
Parkeerplaats 105,- +
Totale huurprijs 1.525,45
Borg 3.050,90