Direct reageren? Stel notificaties in!
Appartement in Steenstraat
1955
per maand
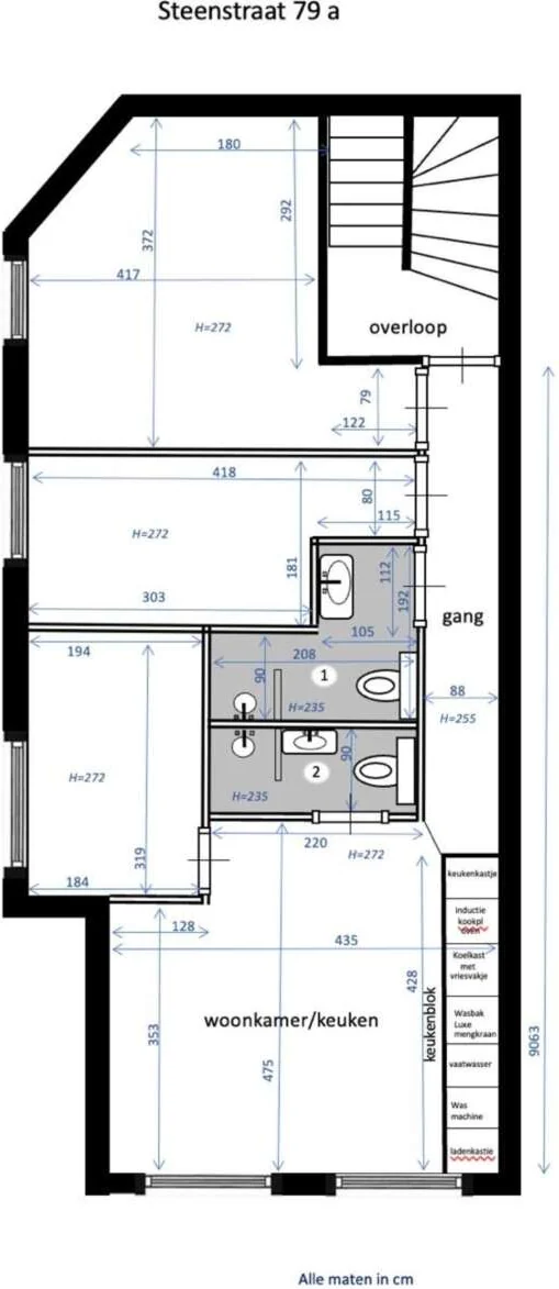
59 m²
oppervlakte
Onbekend
opleverniveau
Onbeperkt
huurtermijn

























8 dagen geleden
Eigen Keuken
Eigen Douche
Eigen Toilet
Eigen Woonkamer
Huisdieren Toegestaan
Slaapkamers
Wasmachine Beschikbaar
Beschrijving
nl:
appartement steenstraat te arnhem
splinternieuw appartement gelegen in de steenstraat op loopafstand van het centrum van arnhem en nabij alle voorzieningen zoals winkels, supermarkt, openbaar vervoer, station, etc.
lichte woonkamer met een ruime open keuken voorzien van alle gemakken, zoals een koelkast, kookplaat, afzuigkap, oven, vaatwasser en wasmachine!
aangrenzend aan de woonkame ...
Map should be here