Direct reageren? Stel notificaties in!
Kamer in Hommelstraat
494
per maand excl. g/w/l
16 m²
oppervlakte
Gestoffeerd
opleverniveau
Onbeperkt
huurtermijn



4 dagen geleden
Eigen Keuken
Eigen Douche
Eigen Toilet
Eigen Woonkamer
Huisdieren Toegestaan
Beschrijving
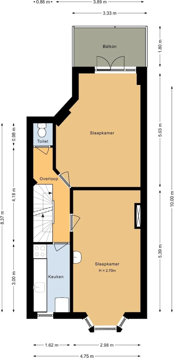
Kamer 1 is beschikbaar per 1 december. Je krijgt een nette kamer van 16m2 met ingebouwde kastruimte in een studentenhuis met nog 3 andere huisgenoten. Je deelt met zn 2en per etage een wc en een keuken, de badkamer deel je met zn 4en. Bezichtigen is mogelijk op vrijdagochtend 28 december. Laat bij je aanvraag even weten wie je bent en wat je studeert.
Map should be here