Appartement in Sterrenkroos














































Zeer nette en ruim opgezette 2-onder-1-kap woning met 4 slaapkamers, riante en luxe keuken en tuin grenzend aan het water
123Wonen Dé Verhuurmakelaar biedt aan:
Gestoffeerde 2-onder-1-kap woning op geweldige locatie
Sterrenkroos, Bergen op Zoom
WAUW WAT EEN WONING!!!
Gelegen in Bergen op Zoom ligt deze bijzondere en ruime woning aan Sterrenkroos. Een woning met een woonoppervlakte van 170 m2, gebouwd in 2023 en met energielabel A+++.
Stijlvol wonen in Bergen op Zoom. Dat kan goed in deze buurt. Sterrenkroos is gelegen in de buurt De Markiezaten. Dit is een kindvriendelijke buurt met relatief veel gezinnen. De buurt heeft naar verhouding veel jonge inwoners van tussen de 25 en 44 jaar.
Deze riante 2-onder-1-kapper ligt op een goede locatie aan Sterrenkroos te Bergen op Zoom, niet ver van uitvalswegen en snelweg en op enkele minuten van het gezellige stadscentrum. De woning is met oog voor detail gestoffeerd......een plaatje!!
De woning heeft een voortuin, eigen parkeerplaats voor 2 auto's en een achtertuin met een adembenemend uitzicht over het water.
Bent u op zoek naar een woning die luxe en duurzaamheid perfect combineert? Dan is deze prachtige twee-onder-een-kapwoning aan Sterrenkroos zeker iets voor u! Deze super de luxe woning, gebouwd in 2023 en opgeleverd in 2024, biedt het ultieme wooncomfort dankzij de hoogwaardige afwerking en de nieuwste energiebesparende technieken. Deze woning telt drie slaapkamers, met de mogelijkheid tot het creëren van een vierde, ruime achtertuin grenzend aan het water, en een grote berging. Bovendien beschikt deze woning ook over 14 zonnepanelen en energielabel A+++. Hier wil je dus wel wonen!!
Indeling:
Begane grond: Bij binnenkomst, via de zijkant van de woning, treft u een ruime en lichte hal met een trapopgang naar de eerste verdieping, meterkast (met 10 groepen), toilet en toegang tot de zeer luxe afgewerkte woonkamer.
De woonkamer biedt een perfecte mix van comfort en stijl, met grote raampartijen die zorgen voor veel natuurlijk licht. De hoge plafonds, lichte muren en grote vloertegels in aarde tinten geven deze ruimte een open en ruimtelijk gevoel.
De gloednieuwe open keuken is een waar paradijs voor kookliefhebbers, voorzien van de nieuwste inbouwapparatuur (Miele en Siemens) en met Quooker en is voorzien van hoogwaardige materialen. Het grote kookeiland heeft de beschikking over een Bora kookplaat. De ruime kast partijen zorgen voor meer dan voldoende opbergruimte. Er is zelfs nog ruimte voldoende om een grote eettafel te plaatsen waar u met familie en vrienden heerlijk kunt dineren. Tevens is de achtertuin bereikbaar via deze keuken, waardoor het woongedeelte perfect doorloopt naar de buitenzijde.
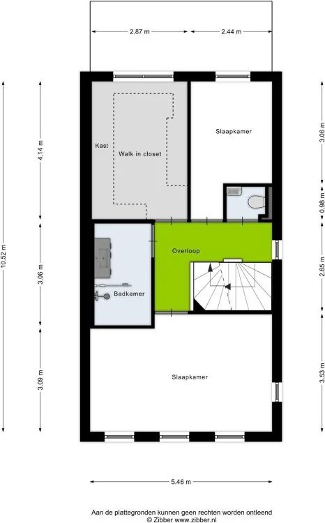
Eerste verdieping:
Wat voornamelijk opvalt in de woning is de ruimte wat u ook terug ziet komen op