Direct reageren? Stel notificaties in!
Appartement in Laan van Roos en Doorn
2295
per maand excl. g/w/l
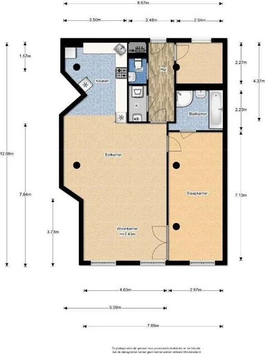
98 m²
oppervlakte
Onbekend
opleverniveau
Onbekend
huurtermijn


























13 uur geleden
Eigen Keuken
Eigen Douche
Eigen Toilet
Eigen Woonkamer
Huisdieren Toegestaan
Slaapkamers
Energie Label a
Beschrijving
recently renovated ground floor apartment with 2 bedrooms and separate storage space, situated in the centre of town. located in the popular district 2005, minutes away from denneweg and frederikstraat with their nice shops and restaurants, yet in a quiet street. public transport to the railway stations and the beach is nearby.
layout
well maintained common entrance with bells and mailboxes ...
Map should be here