Direct reageren? Stel notificaties in!
Appartement in Kapelstraat
1550
per maand
99 m²
oppervlakte
Kaal
opleverniveau
Onbeperkt
huurtermijn



















12 dagen geleden
Eigen Keuken
Eigen Douche
Eigen Toilet
Eigen Woonkamer
Huisdieren Toegestaan
Slaapkamers
Beschrijving
nl:
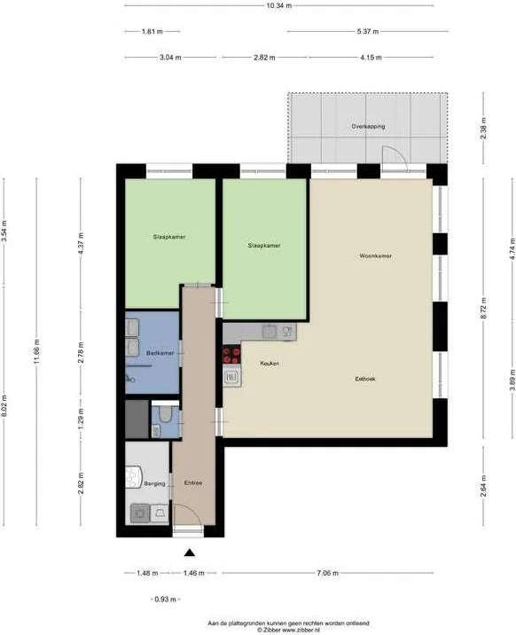
**algemene omschrijving van deze woning**
aan de kapelstraat
-b wordt dit energiezuinige a+++ appartement (bouwjaar 2022) aangeboden. de woning is hoogwaardig afgewerkt en biedt een comfortabele woonruimte met een ruime woonkamer en moderne open keuken, twee royale slaapkamers, een nette badkamer, balkon, technische ruimte en een praktische berging. het appartement wordt kaal verhuur ...
Ideale huurder
Onbelangrijk
Onbelangrijk
??? - ??? jaar
Map should be here