Appartement in Herfstlaan






















































Herfstlaan, Heemstede ca. 163m2 Huurprijs 4.250,- per maand exclusief gwe
Wat een heerlijk familiehuis op een unieke en kindvriendelijke plek!
In een van de mooiste buurten van Heemstede gelegen moderne karakteristieke twee-onder-een kapvilla (163m2) op 280m2 eigen grond met vrij uitzicht aan de voorzijde.
Het is mogelijk de woning gemeubileerd of gestoffeerd op te leveren.
Deze woning bezit een natuurlijke charme door de aanwezigheid van de karakteristieke kenmerken van een jaren 30 woning, zoals glas-in-lood ramen en kamer-en-suite. De woning is zeer goed onderhouden met nieuwe vloeren, binnen schilderwerk en stoffering in 2021. Met ruime eetkamer, woonkamer en suite, 5 slaapkamers, zonnige achtertuin (12m diep en 9m breed), voor- en zijtuin en parkeermogelijkheid op eigen terrein is dit een ideaal gezinshuis.
Je loopt letterlijk zo het Groenendaalse wandelbos in waar zich ook een kinderboerderij, speeltuin en restaurant bevinden. Tevens op steenworp afstand diverse sportvelden (hockey, voetbal, honkbal, tennis) en een zwembad. De bekende winkelstraat Binnenweg-Raadhuisstraat, goede horeca en de beste scholen en kinderopvang bevinden zich allemaal op loopafstand van de woning. De wekelijkse markt is om de hoek. Met zo'n 10 minuten fietsen sta je in de Haarlemse binnenstad en met een kleine dertig minuten fietsen ben je op het strand van Zandvoort. Met de auto of het openbaar vervoer ben je zo richting o.a. Amsterdam, Schiphol en Den Haag.
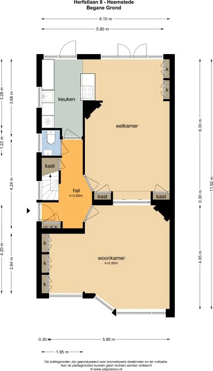
- Begane grond:
Ruime voortuin, entree, hal met meterkast, toilet, garderobekast en trapopgang. Toegang vanuit de hal tot de lichte en ruime woonkamer, voorzien van een open haard met open verbinding tot de riante eetkamer welke tevens is voorzien van openhaard met aangrenzend de keuken voorzien van diverse inbouwapparatuur. De openslaande deuren bieden vanuit de eetkamer doorgang tot de diepe tuin. De keuken is voorzien van een originele boerendeur naar de tuin. De achtertuin biedt de hele dag zon vanwege de vrije ligging en diepte. Tevens heeft de tuin een vrijstaande schuur.
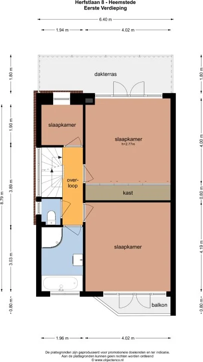
- Eerste verdieping:
Trapopgang naar ruime eerste verdieping voorzien van 2 grote en 1 kleinere slaapkamer. Vanuit de grote slaapkamer aan de achterzijde heeft men via openslaande deuren toegang tot een ruim balkon. De slaapkamer aan de voorzijde heeft eveneens openslaande deuren tot een balkon. Badkamer voorzien van wastafelmeubel, een ligbad en aparte douche. Toilet op de overloop.
- Tweede verdieping:
Via de vaste trap bereikt men de tweede verdieping welke tevens is voorzien van 2 grote slaapkamers en een tweede badkamer voorzien van douche, wastafelmeubel en toilet. De slaapkamers op deze verdieping kunnen bovendien worden gebruikt om rustig thuis te werken.
Bijzonderheden:
- Heerlijke gezinswoning
- Zeer goed onderhoud (vloeren,