Kamer in Platostraat











2 Student Rooms Available on Platostraat in Rotterdam!
Are you looking to rent a room together with a fellow student in a friendly house in Lombardijen? Currently, two rooms are still available in this spacious student property.
The house is located in a quiet and green neighborhood, with supermarkets, shops, playgrounds, sports facilities, and Spinozapark within walking distance. Public transport connections are excellent: Rotterdam Lombardijen train station and several bus and tram stops are nearby, allowing you to reach the city center or universities and colleges quickly.
Property Layout
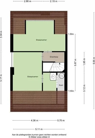
Through the shared entrance, you enter the hallway with access to the communal living room and kitchen. On the first floor, there are two bedrooms (one with a balcony) and a shared bathroom. On the second floor, there are two additional rooms. The two available rooms are located on the first and second floors, with residents sharing the bathroom and toilet.
Rental Conditions
Base rent room 3: 616.58 per month
Base rent room 5: 685.17 per month
Advance payment utilities (G/W/E): 100 per month
Internet: excluded
Deposit: 1200 per room
Available: immediately
Energy label: A++ (after renovation)
Minimum rental period: 12 months
No pets, no smoking
Students only
Rental Process
After registering via this website, you will receive an onboarding form. Following an initial review, you will be invited for a viewing. After the viewing, we will conduct a credit check and present the most suitable candidates to the owner. For this process, we request payslips, an employment statement, bank statements, and a landlord statement.