Direct reageren? Stel notificaties in!
Appartement in Grauwaartsingel
2200
per maand
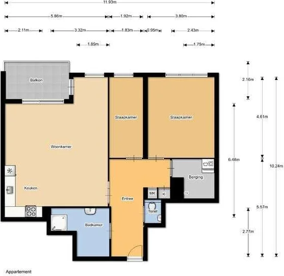
92 m²
oppervlakte
Onbekend
opleverniveau
Onbeperkt
huurtermijn


















7 dagen geleden
Eigen Keuken
Eigen Douche
Eigen Toilet
Eigen Woonkamer
Huisdieren Toegestaan
Slaapkamers
Energie Label a
Beschrijving
een modern 3-kamerappartement uit 2018 (ruim 92 m2) in leidsche rijn centrum, zeer gunstig gelegen ten opzichte van winkels, openbaar vervoer en uitvalswegen. deze fraaie woning beschikt over een eigen parkeerplaats in de onderbouw, een gezamenlijke afgesloten fietsenstalling en een eigen berging. er is een energielabel a.
de gehele woning is ruim van opzet en heeft 2 slaapkamers, een ruime ...
Map should be here